

Landmark Lakefront is a fully realized modern-contemporary residence on Lake Simcoe, designed around unbroken water views, a sculptural mono-stringer stair and seamless transitions between interior living, covered terraces and a tiered stone waterfront landscape. Commissioned by Canadian artist Zarum and later sold for just under eight million dollars, it stands as a built example of Lamadeleine Design's modern lakefront capability.
The house comprises 7,300 sq. ft. above grade, supported by a finished walkout lower level of 3,350 sq. ft. that functions as an equal living floor. A large four-car garage is integrated into the street elevation rather than treated as an add-on. On the lake side, an enclosed main-floor terrace and a second-floor covered terrace extend the interior living spaces toward the water as part of one continuous lake-facing composition. The commission was tailored to a working artist client, with circulation and wall space planned to showcase both the lake and his art collection.
The house is conceived as a stacked glass pavilion stepping down to the water — a calm, modern frontage to the street and a fully expressed resort-grade elevation to the lake. The brief called for a disciplined modern envelope, gallery circulation and a clear hierarchy of terraces so the home could work as both a private residence and a place to host large gatherings.
Inside, the architecture stays quiet: long lines, clean ceilings, simple volumes — so that strong artwork and furniture can sit inside it without overwhelming the structure.


The site falls sharply from road to shoreline, which means the house had to be composed with the grade rather than against it. From the lake, Landmark reads as a stacked, glass-fronted pavilion stepping down the slope, with three levels of glazing aligned to the same view line. Continuous glass bands, composite aluminum panels, slate accent walls and standing-seam metal roofing give a clean modern face to the water — so the whole elevation feels like one disciplined composition.

At street level, the house manages daily life without losing composure. From the road, Landmark presents a controlled, modern frontage: strong horizontals, a clear garage mass and a sheltered entry under deep overhangs. The four-car garage is pulled into the architecture so turning, parking and deliveries all happen cleanly within the stone drive court, without cluttering the main elevation.

The entry sequence is deliberately compressed to save the view. A deep overhang, oversized pivot door and framed porch create a controlled threshold before the lake is revealed. Materials at the front step — stone, metal and warm wood — echo the palette that continues through the interior, setting a calm modern tone before the lake views open up.

The kitchen is organized as a sequence of pantry, breakfast kitchen and main working kitchen, culminating in a long island that anchors the social core of the house. From the island you read directly into the double-height family room and out across the pool and lake. Finishes are restrained and modern so the space carries daily use and larger gatherings without feeling busy or over-styled.
Inside, the foyer holds a formal edge but immediately pulls you toward the water. Dining, kitchen and the main stair are aligned on a single axis so the eye is drawn straight through to glass and lake. The ground level works as a complete everyday living floor, with formal rooms near the entry and more relaxed spaces as you move toward the lakefront glazing.

On the upper level, circulation and suites are treated as part of the same gallery. The guest and family bedrooms are kept deliberately calm, with simple furnishings and generous glazing that pulls the view across the water. This lake-facing suite is typical of the level: a quiet, comfortable retreat that feels its own while still connected to the larger house through the gallery above.
A mono-stringer stair with glass guards sits visibly between foyer and lake wall, dividing space without severing sightlines. It acts as a sculptural spine tying ground floor, upper gallery and walkout club floor together. The lightness of the stair keeps the double-height volume open, allowing views and light to pass through rather than stopping at it.

The walkout level is set up as a club floor rather than a typical basement. At the lake level, a recreation space with bar opens directly to the terraces, supported by a home theatre, gym and wellness spaces. The vertical connection from gallery to great room to club floor means the entire house reads as one interconnected volume, not three isolated storeys.

At the pool deck, architecture and landscape fuse into a tiered waterfront. Broad stone terraces, integrated planters and a rectilinear pool step the eye down toward the lake, with each level wide enough to live on. Retaining walls and stairs are aligned with the house so the entire descent feels deliberate and calm, ending at a recessed boathouse and an intimate lakeside gathering area anchored by a wood-burning stone fireplace.
On the upper level, circulation and suites are treated as part of the same gallery. The guest and family bedrooms are kept deliberately calm, with simple furnishings and generous glazing that pulls the view across the water. This lake-facing suite is typical of the level: a quiet, comfortable retreat that feels its own while still connected to the larger house through the gallery above.

Above, a covered terrace works as an outdoor living room suspended over the shoreline. Framed views, a protective roof and glass guards keep the horizon clean from every seat. Matching soffits and ceiling details tie the terrace back to the interior gallery, so it reads as an extension of the house rather than a bolt-on balcony.
The walkout level is set up as a club floor rather than a typical basement. At the lake level, a recreation space with bar opens directly to the terraces, supported by a home theatre, gym and wellness spaces. The vertical connection from gallery to great room to club floor means the entire house reads as one interconnected volume, not three isolated storeys.

The client is a bold contemporary artist with a substantial collection and a preference for saturated colour. In response, the architecture is kept deliberately restrained: white walls, long glass runs, clean ceilings and simple structural lines — so that strong artwork and bright furnishings can exist unapologetically within the space. From the upper gallery you see how colour, art and furniture sit inside the larger framework of glass, structure and lake view.
.png)
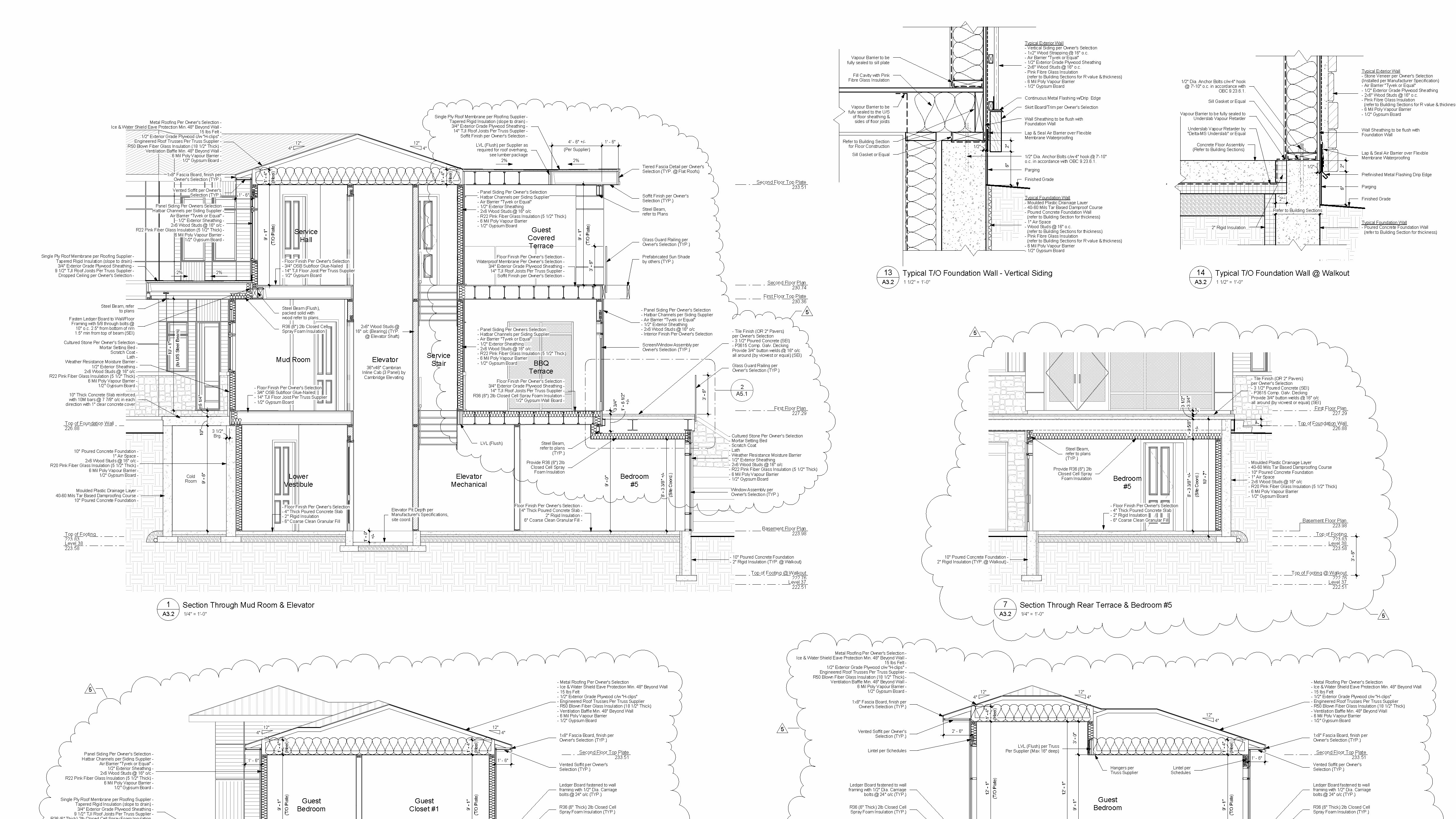
Landmark's apparent simplicity depends on a disciplined technical framework behind the scenes. Structural and glazing systems are coordinated to maximize lake exposure while managing spans, loads and energy performance. Vertical circulation — feature stair, elevator and service stair — links every level cleanly so the house lives as one connected volume.
Garage, terraces and retaining structures are integrated into the architectural composition and grading strategy to meet conservation and shoreline requirements while still delivering a fully engineered, low-maintenance waterfront. The result is a house that looks straightforward in elevation and section because the complexity has been resolved in the background.


Landmark Lakefront was led by Philippe Lamadeleine, with architectural services delivered under Custom CADD Inc. and presented as part of Lamadeleine Design – Bespoke Luxury Homes.
Landmark shows what becomes possible when a modern house, a difficult site and a serious view are planned as one system from street to shoreline.

A brief, focused conversation to review your site, goals, and timeline — and to confirm whether Lamadeleine is the right studio for your home.